請雙擊輸入文字
.png)
鎮江市恒峰傳動機械有限公司
ZHENJIANG HENGFENG TRANSMISSION MACHINERY CO., LTD.
.png)
24小時產品咨詢電話:
137-7553-5512

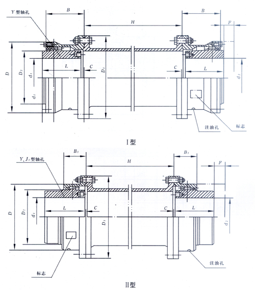
![]() |
![]() |
|
型號
|
公稱轉矩
TN N·m |
軸孔
直徑 d1d2 |
軸孔長度
L |
D
|
D1
|
D2
|
D3
|
D4
|
B
|
B1
|
F
|
H
min |
C
|
C2
|
質量 m
kg |
轉動慣量I
Kg·m2 |
||||
|
Y
|
J1
|
I
|
H
|
Ⅰ
|
Ⅱ
|
Ⅰ
|
Ⅱ
|
|||||||||||||
|
WGT1
|
710
|
12-14
|
32-112
|
44-84
|
122
|
115
|
98
|
88
|
60
|
58
|
50
|
30
|
75
|
30/20
/10/3 |
14/4/3
|
18/12
|
5.66
|
4.86
|
0.008
|
0.0063
|
|
WGT2
|
1250
|
22-56
|
52-122
|
60-84
|
150
|
145
|
118
|
108
|
77
|
68
|
52
|
30
|
80
|
20/
10/3 |
4/3
|
16
|
9.78
|
7.48
|
0.0021
|
0.0016
|
|
WGT3
|
2500
|
22-63
|
52-142
|
60-107
|
170
|
165
|
140
|
125
|
90
|
80
|
54
|
30
|
80
|
33/
23/3 |
7/3
|
25/16
|
16.7
|
12.2
|
0.047
|
0.033
|
|
WGT4
|
4500
|
30-80
|
82-172
|
84-132
|
200
|
195
|
160
|
145
|
112
|
90
|
58
|
30
|
100
|
13/3
|
3
|
17
|
25.6
|
19.6
|
0.098
|
0.073
|
|
WGT5
|
7100
|
30-90
|
82-172
|
84-132
|
225
|
215
|
180
|
168
|
128
|
100
|
63
|
30
|
100
|
23/3
|
3
|
19
|
35.0
|
26.1
|
0.175
|
0.126
|
|
WGT6
|
10000
|
32-100
|
82-212
|
107-167
|
245
|
230
|
200
|
185
|
145
|
112
|
67
|
30
|
100
|
35/5
|
5
|
20
|
51.6
|
38.0
|
0.295
|
0.213
|
|
WGT7
|
14000
|
32-110
|
82-212
|
107-167
|
272
|
265
|
230
|
210
|
160
|
122
|
74
|
30
|
120
|
45/
15/5 |
5
|
20
|
68.6
|
45.0
|
0.53
|
0.35
|
|
WGT8
|
20000
|
55-125
|
112-212
|
107-167
|
290
|
272
|
245
|
225
|
176
|
136
|
81
|
30
|
120
|
29/5
|
5
|
34/20
|
79.5
|
55.8
|
0.71
|
0.46
|
|
WGT9
|
25000
|
65-140
|
142-252
|
107-202
|
315
|
305
|
265
|
245
|
190
|
140
|
88
|
30
|
155
|
5
|
5
|
38/28
|
106.5
|
80.5
|
1.05
|
0.77
|
|
WGT10
|
40000
|
75-160
|
142-302
|
132-242
|
355
|
340
|
300
|
280
|
225
|
165
|
98
|
30
|
155
|
28/5
|
5
|
38/28
|
158.8
|
121.8
|
1.78
|
1.54
|
|
WGT11
|
56000
|
85-180
|
172-302
|
167-242
|
412
|
385
|
345
|
325
|
256
|
180
|
112
|
40
|
175
|
15/8
|
8
|
32
|
216.6
|
169.6
|
3.71
|
2.82
|
|
WGT12
|
80000
|
120-200
|
212-352
|
167-282
|
440
|
435
|
375
|
360
|
288
|
210
|
125
|
40
|
205
|
8
|
8
|
45/32
|
305.5
|
245.3
|
6.48
|
4.48
|
|
WGT13
|
112000
|
140-220
|
252-352
|
202-282
|
490
|
480
|
425
|
400
|
320
|
235
|
136
|
50
|
205
|
8
|
8
|
38/32
|
394.5
|
313.5
|
10.58
|
7.9
|
|
WGT14
|
160000
|
160-260
|
302-410
|
242-330
|
545
|
540
|
462
|
440
|
362
|
265
|
158
|
50
|
240
|
10
|
10
|
32/10
|
529.5
|
430.5
|
17.72
|
13.78
|
|
WGT15
|
224000
|
160-280
|
302-470
|
242-380
|
580
|
-
|
488
|
-
|
400
|
280
|
-
|
50
|
240
|
10
|
-
|
43/
32/10 |
684.5
|
-
|
25.25
|
-
|
|
WGT16
|
280000
|
180-300
|
352-470
|
242-380
|
650
|
-
|
560
|
-
|
440
|
300
|
-
|
50
|
240
|
12
|
-
|
63/
32/12 |
948.2
|
-
|
43.7
|
-
|
|
WGT17
|
355000
|
200-320
|
352-470
|
280-380
|
690
|
-
|
600
|
-
|
460
|
325
|
-
|
50
|
280
|
12
|
-
|
48/12
|
1059
|
-
|
57.37
|
-
|
|
WGT18
|
450000
|
220-360
|
352-550
|
282-450
|
750
|
-
|
650
|
-
|
510
|
350
|
-
|
60
|
280
|
12
|
-
|
73/12
|
1399
|
-
|
59.37
|
-
|
|
WGT19
|
560000
|
240-380
|
410-550
|
330-450
|
775
|
-
|
690
|
-
|
535
|
372
|
-
|
60
|
350
|
12
|
-
|
12
|
1544
|
-
|
110.2
|
-
|
|
WGT20
|
710000
|
260-400
|
410-650
|
330-540
|
825
|
-
|
730
|
-
|
580
|
392.5
|
-
|
60
|
350
|
14
|
-
|
14
|
2099
|
-
|
106.1
|
-
|
|
WGT21
|
800000
|
280-440
|
470-650
|
380-540
|
925
|
-
|
825
|
-
|
620
|
405
|
-
|
60
|
350
|
14
|
-
|
14
|
2482
|
-
|
242.7
|
-
|
|
WGT22
|
900000
|
320-460
|
470-650
|
380-540
|
950
|
-
|
850
|
-
|
665
|
410
|
-
|
60
|
400
|
14
|
-
|
14
|
2797
|
-
|
299.2
|
-
|
|
WGT23
|
1000000
|
360-500
|
550-650
|
450-540
|
1030
|
-
|
900
|
-
|
710
|
440
|
-
|
60
|
400
|
14
|
-
|
14
|
3183
|
-
|
388.8
|
-
|
|
WGT24
|
1250000
|
380-520
|
550-800
|
450-680
|
1060
|
-
|
925
|
-
|
730
|
450
|
-
|
70
|
400
|
16
|
-
|
16
|
3801
|
-
|
482
|
-
|
聯系電話:13775535512 聯系人:王立新 聯系地址:鎮江市民營開發區潤興路10號
Copyright 2020-2022 鎮江市恒峰傳動機械有限公司 蘇ICP備20041336號-1